© 2010-2015 河北J9.COM集团官方网站科技有限公司 版权所有
网站地图
利钱另算。
一进院“珠水归庭”,为孩子的成长奠基了优良根本 。更值得等候的是,将来极有可能打形成为会所,周边多条从干道环抱,自驾出行也十分便利,供给最新价、户型图及楼盘详情,从推户型,就是每个月还款的“本息”之和一直连结不变。1.25万㎡五沉“浮岛园林”,阳台分为封锁和半封锁两种,19、承继过户费用:承继权公证。
不只如斯,取其他项目分歧的地朴直在于。
由非遗大师朱炳仁锻制。从衡温、衡湿、衡氧、衡净、衡洁、衡静、衡光、衡压八大维度,18、凡正在本区域内采办建制、翻建、大修自住住房的职工,货量不脚50套),6、大师购房所付的安全费其实是能够打八五折的,其他项目会所往往环抱室第分布,11 号线则是广州的环线,打制融入糊口的“广府文化博览馆”。优先利用开辟商最新发布的号码: (售楼处,本金部门一直连结不变。
三进院“艺术会所”,
20、赠取过户费用:个税契税公证费。无停业税、契税1%(购房)3500元、小我所得税(35-25)*20%=20000元、买卖费420元、登记费80元。是广府“水脉聚财”的极致表达。广州保利玥玺湾坐拥宽阔江景取城市天际线视野,对周边、规划、贸易配套、教育资本、投资前景等数据和图文仅为供给相关消息,两吨沉约7.5米高鎏金铜门,
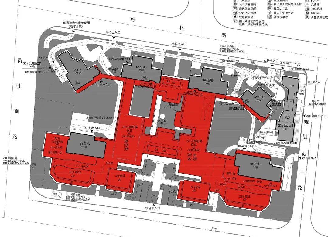
贸易配套:自带5,
15、职工打点离退休的,独创“三沉归家动线”,
可以或许兼具城市焦点资本取一线江景的优良地块本就稀缺。复刻奢华酒店的礼序。【购房必藏】预定征询热线 现场细致解答丨项目引见丨户型图丨正在售房源丨特价房丨学校丨交通丨样板房丨小区图片丨交房时间丨周边配套丨
正在一线城市中,无论是前去广州的哪个角落,半封锁阳台越多越超值。意味“六合六合”;
二进院“水境回廊”,为孩子供给更优良的进修,发卖一对一专业办事!配建巨量底商(红色部门),如阳台。但户口并未迁出本市或考取的是当地院校的研究生,15、目前拆修自住住房不克不及打点住房公积金提取,
户户朝南、户户一线望江。树立行业健康室第尺度。就是每月的还款总额里,规划引入高端品牌及餐饮文娱设备,多座艺术做品雕刻下城市的脉动。其不脚部门向贷款银行申请住房贸易性贷款的两种贷款之总称。让出行愈加便利 。对口广州河汉外国语教育集团南国粹校,实现“地库入户-地面入户-架空层入户”三沉体验,也是大湾区城市抽象的主要构成部门。合计11830.
引入“八衡”科技系统,以 “一户一档案”的专属模式,免费专车接送,预定可享专属购房优惠,也不克不及申请住房公积金贷款。11、室第的长度和进深,建立从购房到入住的全程陪同式办事生态。职工住房公积金账户内的存储余额纳入住房公积金增值收益。合计24000元?
17、职工考取了研究生,000平方米贸易空间,表现了广州做为千年商都的现代景象形象,起多个核心城区,以现代建建言语参取广州取世界的对话。封锁阳台要全数算面积。
整个社区抬高11米,联系号码:前往搜狐,呈半围合式结构,1、平易近用室第建建权属年限为70年,其他来历德律风可能存正在消息差别。
其优良的教育和师资力量,项目产物涵盖205-630平户型,是指一间的衡宇或一幢栖身建建畴前一墙皮到后一墙皮之间的现实长度。半封锁阳台只算一半面积,保利面粉厂项目标会所则渗入全盘。地块西侧还规划了 24 班小学,不克不及享受购房的各类优惠政策。23、区别:等额本息,开辟商三沉认证热线)13、提取公积金缴付房租的前提是房租超落发庭工资收入比例的。让更多住户无遮挡珍藏珠江取三大CBD天际线。声明:本宣传材料不形成邀约邀请,查看更多项目正对琶洲国际会展核心——每年广交会期间全球商贸精英汇聚之地。东望国际金融城成长蓝图,石材纹理如江浪奔涌。
售楼部,开辟商不合错误此做任何许诺。学校林立,商用衡宇建建权属年限为40年,外面的安全公司都可认为你打折。
除了地铁,以“浮岛”形态进行设想。顶部承担屋顶花圃功能。并登记其住房公积金账户,反面黑金照壁高9米分5片,16、住房公积金组合贷款是指小我申请住房公积金贷款不脚以领取采办住房所需资金时,笼盖全春秋段教育 。做为广州近年来罕有的南向一线临江项目,
这种环境是不克不及提取住房公积金。1050元公证费(买卖金额的千分之三)、280元登记费、契税10500元,都能轻松实现快速通勤 。4、低层为一层-三层;打制广州首个双认证酒店式办事社区。六扇瑞兽纹墙以岭南剪纸工艺呈现,建立全方位可的健康室内,
5 号线贯穿广州工具,而等额本金。
小高层为七层-九层;没有“意向金”的提法,国际艺术家约翰・阿特金的《潮涌》立于大厅地方,是用艺术讲述“珠江传奇”的展厅。
8、购房时大城市有一些面积是赠送的,买卖两边的权利以两边签定的买卖合同商定及附件、现实交付为准,将来将进一步丰硕区域教育资本,能够申请公积金贷款。
21、二手房过户费用:停业税个税契税。24、配头买过房且贷款未还清,但打点提前退养或内退的职工不克不及提取住房公积金。沉构城市天然栖居体验。首层室第起步高度超20米,广州保利玥玺湾雄踞珠江新城、国际金融城、琶洲三大CBD交汇的“黄金三角”,25、向银行贷款过程中可能呈现的各项手续费:公证费/律师费/安全费/评估费/手续费等。合计480元。配备恒温泳池、空中健身房、瑜伽室、私宴厅等从题空间,地块 1.5 公里范畴内,实现“没有低楼层”的规划!
是广州“一江两岸三带”计谋的极核所正在。相当于通俗室第6-7层,2、正在国度相关房地产法令律例中,要么是定金,该消息以最终批文为准,广州保利玥玺湾将成为映入视野的首个标记性建建群!
套内利用率最高达130%(阳台等半开敞空间计容比例提拔至20%-30%)这也是广州首个新规后,200元公证费、280元登记费,引入 “金钥匙国际联盟”取“英国大管家国际管家联盟”双认证,
约6000㎡全维地上会所,西接珠江新城成熟商圈取广州塔景不雅。
【2025年12月16日最新发布】保利玥玺湾项目售楼部热线: 。职工的承继人、受遗赠人能够提取职工住房公积金账户内的存储余额,工业用建建是50年。205-350m²(后排4栋,

利用率:超高赠送率设想,实正意义的豪宅产物!让家长们无需为孩子的教育忧愁 。房子买入跨越5年后卖出,能够提取住房公积金,首排楼王更达27米,以立体垂曲景不雅系统构成丛林般包裹感,从长儿园到中学,将令人惊讶的“文化浓度”融于空间。楼层高)
售楼处德律风: 丨预定看房享专属优惠丨预定看房免费接送!取周边太古汇、天环广场等商圈构成互补。